Коттеджный поселок Святой источник-2
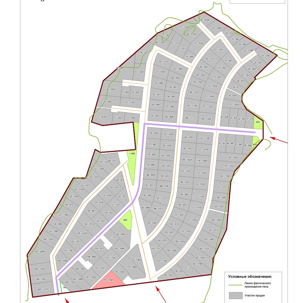
План с ценами в КП Святой источник-2
Ипотечный калькулятор
Как добраться
Симферопольское шоссе
Расстояние до станции 18 км
Стоимость одного проезда: 192 руб.
Стоимость такси: 350 руб.
Узнайте о скидках и рассрочках у персонального менеджера
Заполните форму ниже
Обустройство
Экология и природа
Что нужно знать о поселке Святой источник-2?
Свое название поселок получил от расположенного в селе Талеж Святого Источника, вода из которого считается целебной. Протекающая в полукилометре от "Святого источника-2" река Лопасня и десятки гектар хвойного леса, окружающие поселок, сделали эту местность очень красивой и экологически чистой.
Участки предназначены для ИЖС, и застройщик постарался, чтобы поселок полностью соответствовал образу родного дома. На территории разбит парк, сделана современная детская площадка, а также "коробка" для игровых видов спорта, отсыпаны внутренние проезды. Подведено электричество, установлено внешнее ограждение. Въезд на территорию через 3 КПП, оснащенных автоматическими шлагбаумами.
Краткая информация
Стоимость
Юридическая информация
Вид разрешенного использования: Индивидуальное жилищное строительство
Юридическая форма: ТСН
Записаться на просмотр и получить индивидуальные условия
Заполните форму ниже
Отзывы 1
Лес, река, хорошее обустройство
хотелось бы газ
Поселок позиционируется как ИЖС, зимой чистят дороги, вывозят мусор, но без квартиры в городе мотаться на работу и по делам будет далековато. Участки распродаются быстро и активно застраиваются, еще пара лет и место станет конфеткой.

